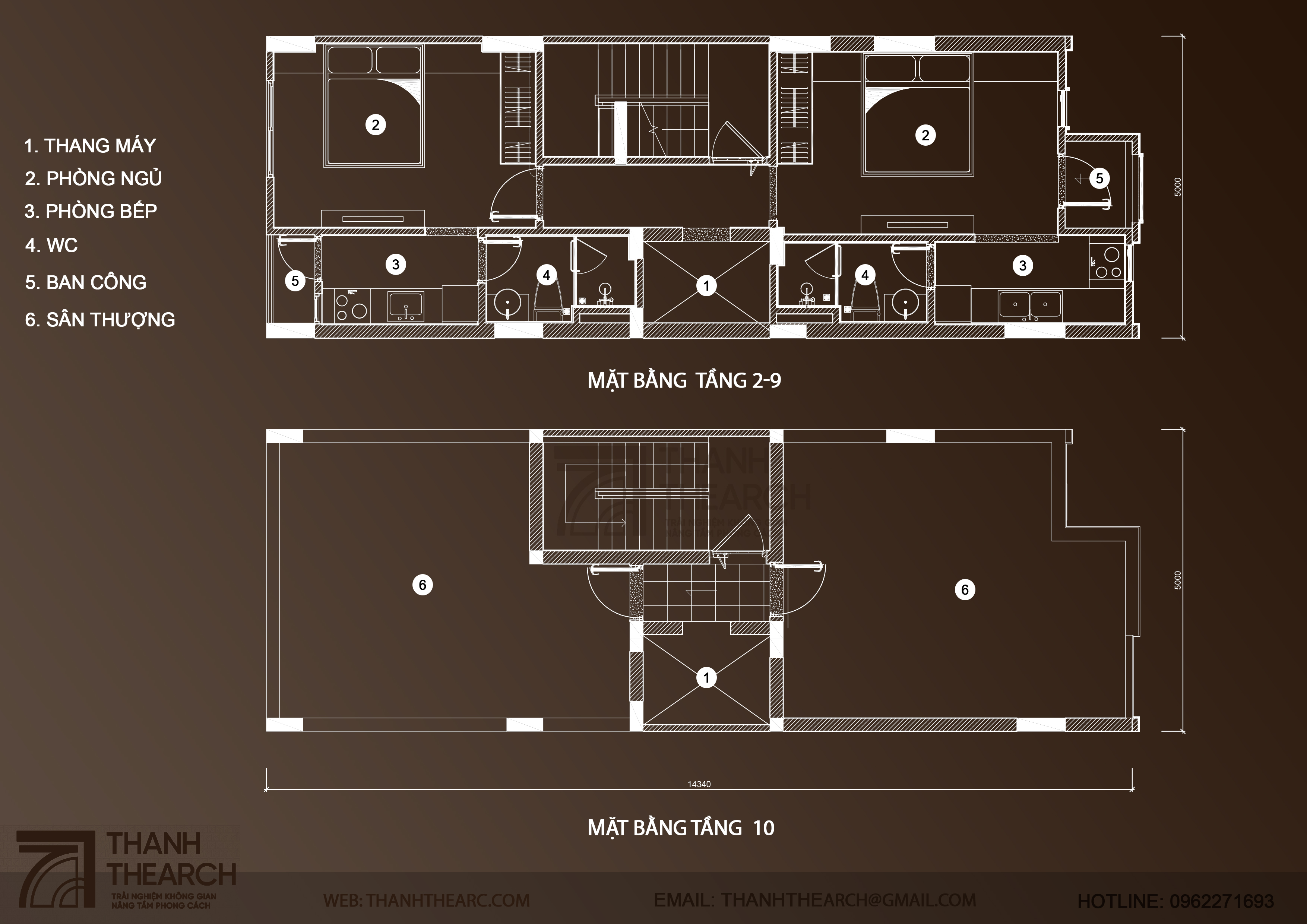
Thông tin công trình
Tòa nhà cho thuê căn hộ mini
Vị trí công trình
Phú Thượng - Tây Hồ - Hà Nội
Số tầng
10 tầng
Diện tích đất
65 m2
Diện tích xây dựng
65 m2
Chi phí xây dựng
17 tỷ đồng