Thông tin công trình
Nhà 3 tầng - Mái bằng - Hiện đại
Vị trí công trình
Hưng Yên
Số tầng
3 tầng
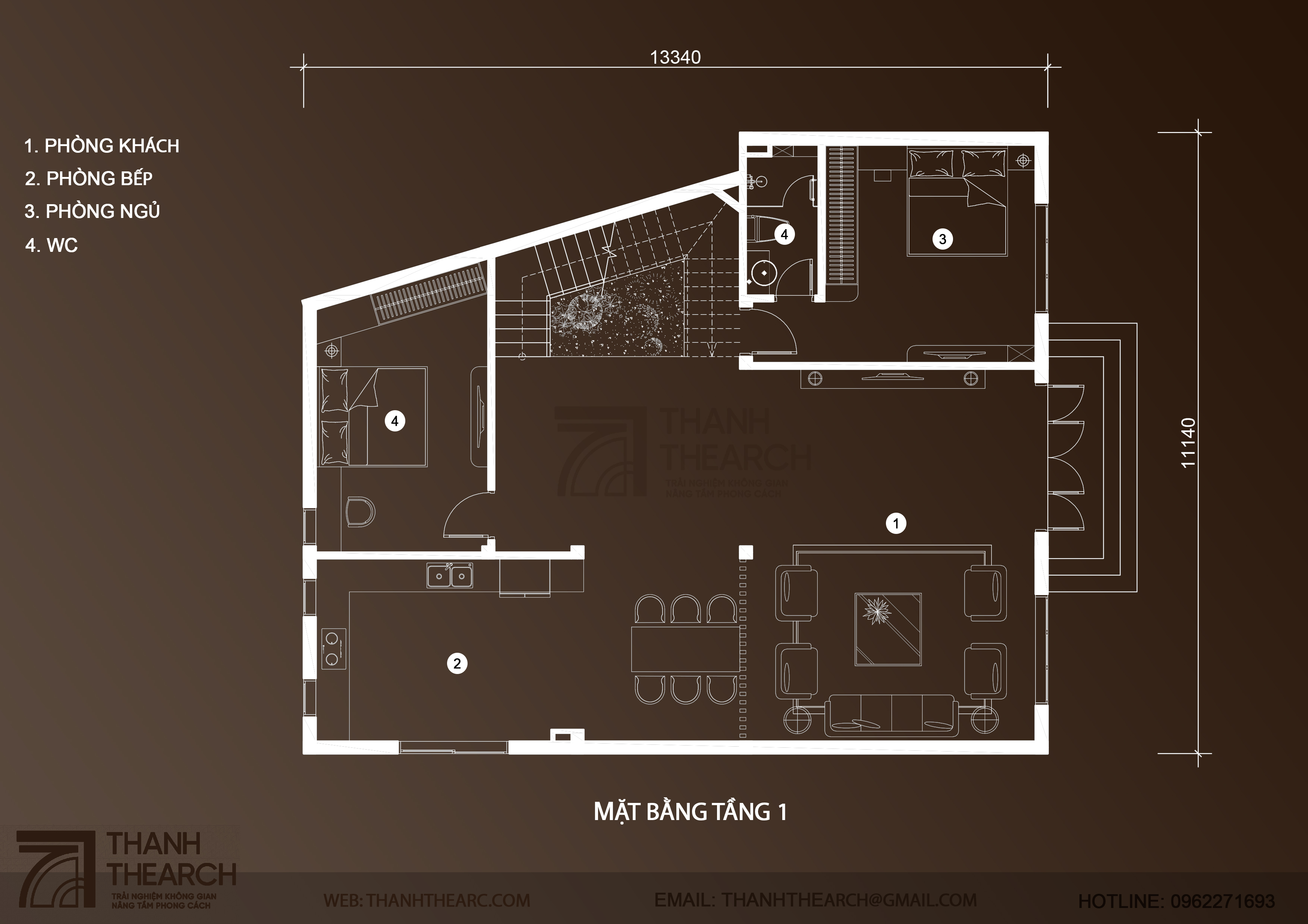
Diện tích đất
172 m2
Diện tích xây dựng
136 m2
Chi phí xây dựng
Chỉ từ 2 tỷ đồng